Vous êtes ici : Accueil >
Retour à la liste
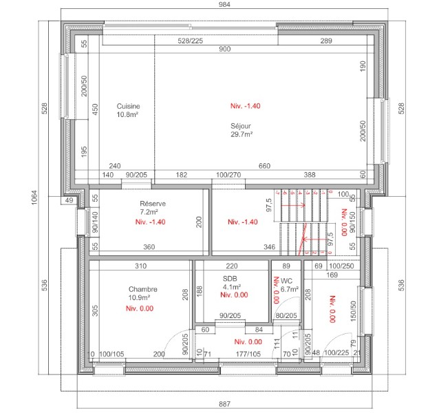
Gahima : Habitation unifamiliale sur le principe de demi-niveaux.
Il s'agit d'un projet en phase de finition de travaux.
Le projet se développe sur deux partie d'habitation, reliées entre elles par la cage d'escalier.
Les demi-niveaux répondent au dénivelé présent entre la rue et la zone jardin. Cela permet d'avoir l'espace de vie en relation directe avec l'espace coure et jardin.
Les façades de l'habitation ont été réalisées en partie en briques et en partie en panneaux de fobriciment.
-
Devis gratuit
Je recherche un prix une prestation
-
Contact
Je veux plus de renseignements
-
Rappel
On vous rappelle si vous le souhaitez




